|
Q41F法兰浮动球阀
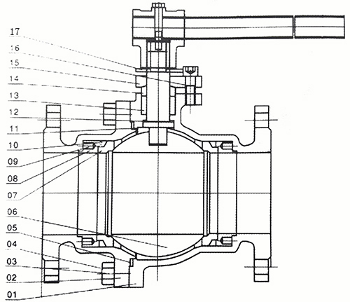
【产品用途】 q41f法兰浮动球阀用于Class150~Class1500、PN16~PN63、JIS10K~JIS20K 的各种管路上,用于截断或接通管路中的介质,选用不同的材质,可分别适用于水、蒸汽、油品、液化气、天然气、煤气、硝酸、醋酸、氧化性介质、尿素等多种介质。 【产品特点】 1、在各种阀门中,浮动球阀的流动阻力最小,全径球阀打开时,球体通道、阀体通道和连接管径相等并成一直径,介质几乎可以毫无损失的流过。 2、球阀旋转90°即可全关全开,启闭迅速。与相同规格的闸阀、截止阀比较、球阀体积小、重量轻,便于管道安装。 【结构简图】
图中数字含义:1表示阀体,2表示阀盖,3表示双头螺柱,4表示螺母,5表示垫圈,6表示球体,7表示阀座,8表示阀座支承圈,9表示阀座弹簧,10表示阀座密封圈,11表示阀杆,12表示止推轴承,13表示阀杆填料,14表示填料压环,15表示填料压盖,16表示螺钉,17表示定位板。 【性能参数】
上一篇Q47F固定球阀下一篇Q41F46衬氟球阀 |
|||||||||||||||||||||||||||||||

