|
Q41F46衬氟球阀
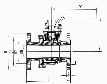
【阀门用途】 Q41F46衬氟球阀内腔及球体均采用高压注塑工艺衬有耐腐蚀、耐老化的聚全氟乙丙稀(F46),故具有可靠的耐腐蚀性和密封性。广泛用于化工、石油、冶金、医药等工业部门,实现对生产过程中酸、碱等强腐蚀介质的调节或切断,在水处理过程控制中使用效果最明显。 【阀门特点】 1、采用FEP衬里层的衬氟球阀,具有极高的化学稳定性,可以适用除“熔融碱金属和元素氟”,以外其它任何强腐蚀性质。 2、衬氟球阀采用全通径、浮动球结构,阀门可在整个压力范围内进行无泄漏关闭,更便于管路系统的通球扫线和管路维护。 3、启闭件球件与阀杆铸(锻)为一体,杜绝了由于压力变化引起阀杆冲出承压件内的可能性,从根本上保证了工程中的使用安全性。 4、衬氟球阀结构紧凑合理,阀体内腔空间最小,减小了介质滞留,另外,特殊的模压工艺,使密封面致密度良好,加之人字环形PTFE填料组合,使阀门达到零泄漏。 5、两片式、三片式结构可适应各种不同要求的管路系统和工况条件,其中三片式球阀允许主阀体与两侧阀体分离,可实现在线快速更换、维修。 【结构简图】
【执行标准】 设计标准:GB12237 结构长度:GB12221 法兰标准:JB/T79-94 GB9113.1-26 检验试验:JB/T9092-99 【性能参数】
上一篇Q41F法兰浮动球阀 |
|||||||||||||||||||||||||||||||||||||||||||||||

